住宅展示場(5)
2006.04.23 Sunday
今回は、住宅展示場(5)です。
スウェーデン・ヨーテボリ市
前回は、モデルハウスに掲示されていた住宅の価格表から、スウェーデンの住宅の値段を、紹介しましたがその続きです。
価格が入った掲示板です。
こちらには、6物件が表示されていました。

その内の、2物件ほど紹介します。
最初は、この建物です。
価格表示は、1,951,000SKr(スウェーデンクローネ)と書かれています。
1SKr=約16円で計算すると、31,216,000円です。

1階平面図です。
床面積は、94.2㎡です。

リビングが31.3㎡、ダイニングキッチンが25.1㎡、主寝室が14.4㎡、その他にエントランス、洗濯室、トイレ+シャワー室が有ります。
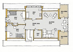
2階平面図です。
床面積は、68.6㎡です。

この階には、11.9㎡の寝室が2つ、27.0+8.6=35.6のリビングとホールが有り、更に9.2㎡のトイレ+シャワー室、3.0㎡のクロークが有ります。
バルコニーは、5.5㎡×2ヶ所有ります。
述べ床面積は、94.2+68.6=162.8㎡(49.25坪)です。
価格¥31,216,000円÷49.25坪=約633,800円/坪と成ります。
もう1つ紹介します。

価格表示は、2,032,000SKr(スウェーデンクローネ)と書かれています。
1SKr=約16円で計算すると、32,512,000円です。
1階平面図です。
床面積は、102.9㎡です。

リビングが54.9㎡、ダイニングキッチンが17.6㎡、その他にエントランス、洗濯室、トイレ+シャワー室、クロークが有ります。
2階平面図です。
床面積は、71.7㎡です。

この階には、約13.5㎡の寝室が4つ、12.9㎡のホールが有り、更に8.1㎡のトイレ+シャワー室が有り、一部吹き抜けも有ります。
述べ床面積は、102.9+71.7=174.6㎡(52.82坪)です。
価格¥32,512,000円÷52.82坪=約615,500円/坪と成ります。
前回と今回の2回に渡り、スウェーデンの住宅展示場モデルハウスにあった価格表示で、住宅価格に付いて書きました。
この価格は、展示場内の30程あるモデルハウスの中の、1つの会社に掲示されていた価格であり、価格がスウェーデン全体の住宅価格を示すモノでは有りません。
また、住宅附属の家電品の範囲や、設備関連に付いても不透明です。
この価格を、どの様に捉えるかは次回に書きます。
次回は、住宅展示場(6)です。
トップページへ > スウェーデントップへ/海外情報:建物・街なみ・展示場トップへ
パッシブハウス・無暖房住宅・外断熱の今川建築設計監理事務所: 2007年01月25日|ページの 先頭へ|